
Stone Hill 4 Bedroom House Design Designs Solo Timber Frame

Square Up To The 21st Century Telegraph

What Is The Average House Size In The Uk Labc
![]()
Ready Made The 25k Home Built In Six Hours Is Too Good To Be

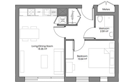
Shoebox Homes Become The Uk Norm Bbc News

House Renovation Costs How Much Does It Cost To Renovate A House

How To Measure A Property S Size In Square Foot Or Metres Daily

Shoebox Homes Become The Uk Norm Bbc News

What Is The Average House Size In The Uk Labc

3 000 To 3 500 Square Feet House Plans

Room Sizes How To Get Them Right Homebuilding Renovating

How Much Does It Cost To Build A House Design For Me

How Much Square Footage Do I Need For A New Home

House Floor Plans 50 400 Sqm Designed By Me The World Of Teoalida
Average Household Electricity Use Around The World

How Much Does It Cost To Build A House In 2018 Pcs Building

Pocket Sized Flats Provide A Start For The Young First Time Buyer

What Size Solar Pv System Do I Need January 2020

How Big Is A House Average House Size By Country
No comments:
Post a Comment